Kontor uthyrd
Skyttevägen 21 / Sannarp
Fint kontor med låg hyra - Sannarp
Fint kontor med låg hyra - Sannarp
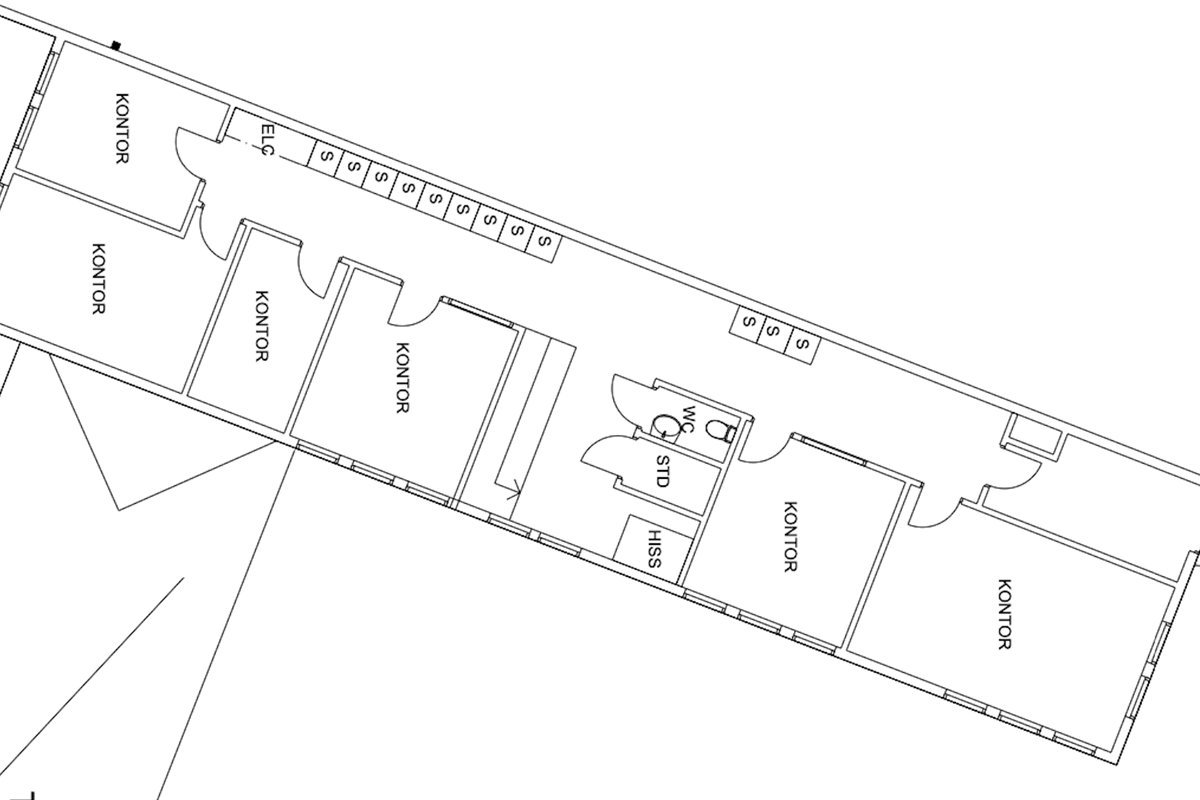
200kvm nyrenoverade kontorslokaler på Sannarps industriområde, nära centrum och E6.
Lokalen omfattar 5 kontorsrum i varierande storlek. Fina nyrenoverade ytskikt, samt litet pentry, konferens och wc. Korridorer med parkett, kontor med matta. Inhägnat område med bra parkeringsmöjligheter.
Kontakta oss för mer information och visning.
Är du på jakt efter lediga lokaler i Halmstad men hittar inte vad du söker? Kontakta oss så hjälper vi dig att hitta rätt.
Hyresinformation
Värme och fastighetsskatt tillkommer. Anpassningar överenskommes separat.
| El: | Egen förbrukning |
| Momspliktig fastighet: | Ja |
Fastighetsinformation
| Hiss: | Ja |
| Konferens: | Ja |
| Gym: | I område |
| Skyltläge: | Ja |
| Handikappanpassat: | Ja |
| Internet: | Fiber |
Parkering
I anslutning
Område och närservice
Handel och kontor
Bilder
Planritningar
