 
    Kontor uthyrd
                Hamngatan 11 / Centrum
Centralt kontor med utsikt mot Nissan
Kontorslokal mitt i city med utsikt mot Nissan
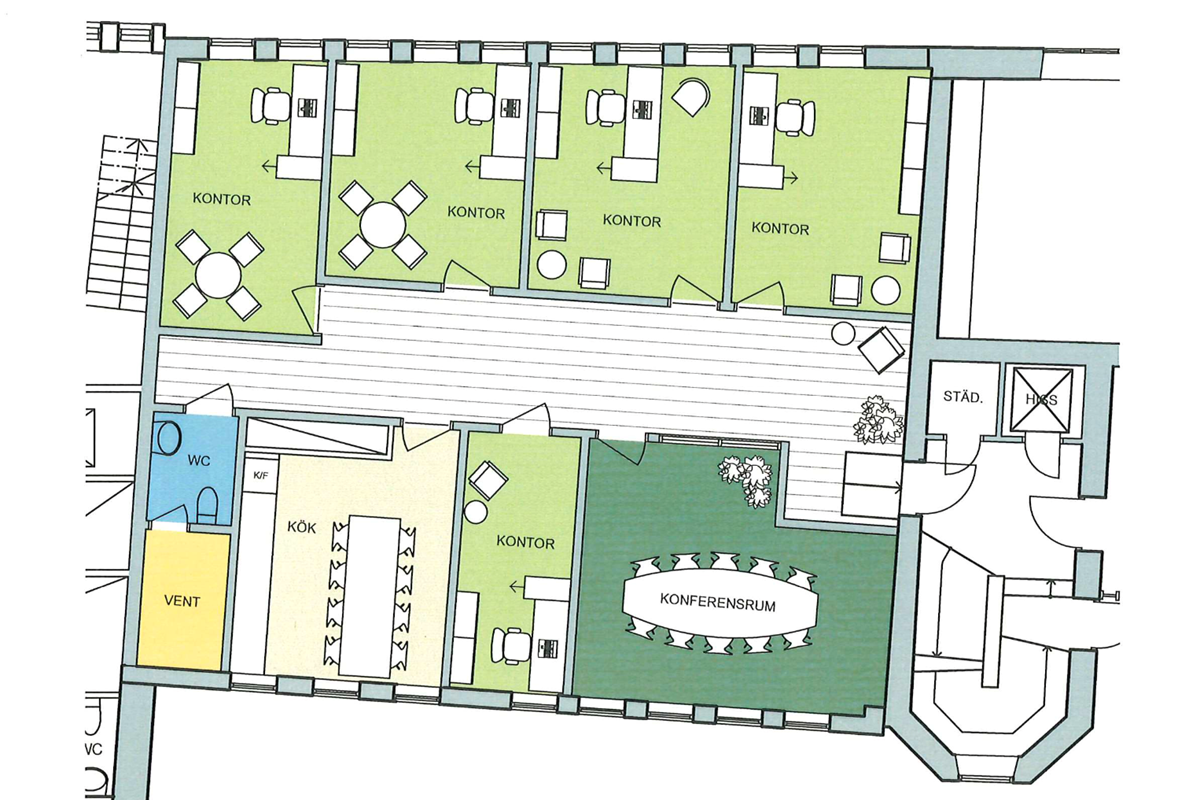
Renoverat kontor i centrala Halmstad. Rumsindelad planlösning.
Lokalen är omgående inflyttningsklar!
Kontakta oss för mer information och visning.
Hyresinformation
Hyra beroende av anpassning. Fastighetsskatt och värme tillkommer. Minst 3 års avtal, 9 månaders uppsägningstid.
| El: | Egen förbrukning | 
| Momspliktig fastighet: | Nej | 
Fastighetsinformation
Fastigheten är utrustad med fjärrvärme, fjärrkyla, FTX-ventilation med kyla samt fiber.
| Hiss: | Ja | 
| Konferens: | Ja | 
| Reception: | Nej | 
| Gym: | Nordic Wellness, 200 m | 
| Skyltläge: | Ja | 
| Handikappanpassat: | Hiss, HWC | 
| Internet: | Fiber | 
Parkering
Parkering i huset.
Område och närservice
Fastigheten är belägen mitt i Halmstad city, mitt emellan Nissan och Stora torg. Här finns direkt närhet till butiker, restauranger och all tänkbar närservice.
| Företag i närheten: | 
 | 
Kommunikationer
- Buss, 50 m
- Järnväg, 500 m
Bilder
 
     
     
         
         
     
     
         
         
     
     
        Planritningar
 
            
 
    