
Kontor,Industri/lager uthyrd
Skallebackavägen 12 / Flygstaden
Kontor med litet lager i Flygstaden
Kontor med litet lager i Flygstaden
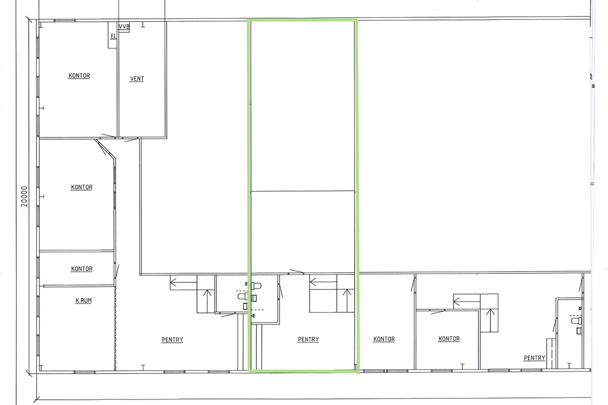
Yteffektiv lokal i Flygstaden. 113 kvm kontor och 70 kvm lager med högt till tak och stor port.
Avvikelse förekommer på ritning plan 1. Alla kontorsrum är ej inritade.
Kontakta oss för mer information och visning!
Hyresinformation
Värme, el och fastighetsskatt tillkommer på hyran.
El: | Egen förbrukning |
Momspliktig fastighet: | Ja |
Fastighetsinformation
Internet: | Fiber |
Parkering
I anslutning
Område och närservice
Handel och lätt industri
Bilder

Framsida, entré





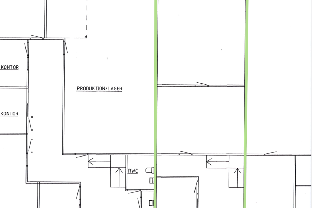
Planritningar

Plan 2, pentry + konferens

Plan 1, kontor och lager