
Kontor,Industri/lager uthyrd
Olofsdalsvägen 15 / Flygstaden
Lager och kontor i Flygstaden
Lager och kontor i Flygstaden
Kontorslokal med större lagerdel. Mycket fint skick.
Tidigare lokal för bilvård. Lokalen kan med fördel användas för liknande verksamhet. Endast etablerade välrenommerade aktörer.
Kontakta oss för mer information och visning!
Hyresinformation
Anpassningar överenskommes separat. El, värme och fastighetsskatt tillkommer.
El: | Egen förbrukning |
Momspliktig fastighet: | Ja |
Fastighetsinformation
Reception: | Ja |
Skyltläge: | Ja |
Internet: | Fiber |
Parkering
I anslutning
Område och närservice
Handel lätt industri
Bilder











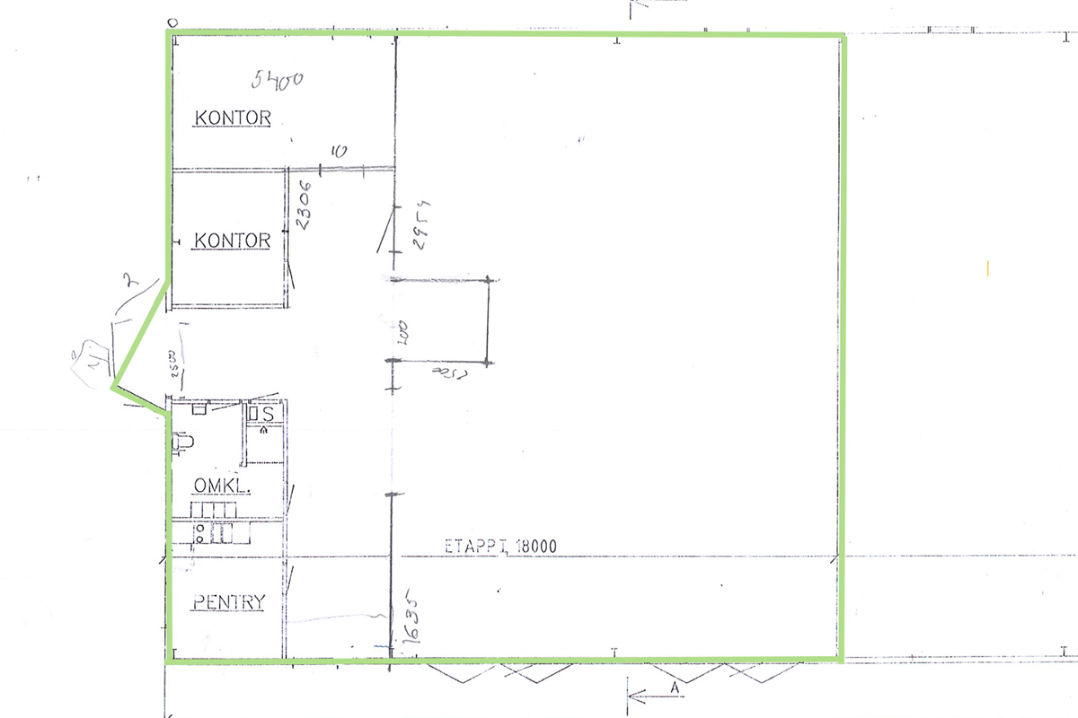
Planritningar
